
Illustrazione 1/3
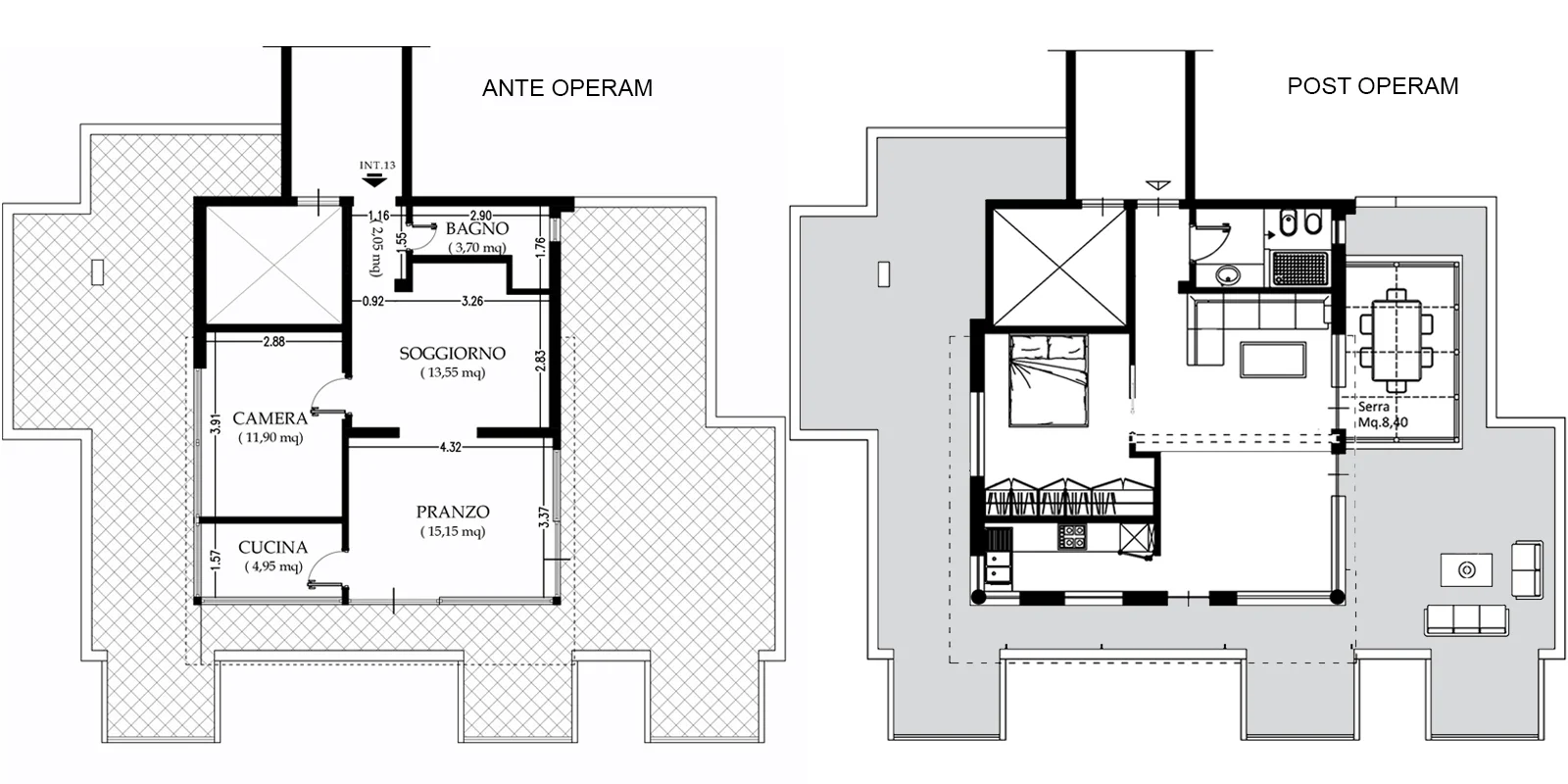
L'intervento partendo dalla demolizione totale cielo terra ha permesso di ricostruire il tetto con strutture leggere in legno lamellare imbiancato con cementite e ha permesso di usare blocchi di Poroton alveolari per le murature portanti. Completa la ristrutturazione una serra passiva, sempre in legno lamellare, sul terrazzo.
Progetto: Arch. Enrico Cerioni.
Direzione lavori: Arch. Enrico Cerioni.

Illustrazione 2/3
L'intervento partendo dalla demolizione totale cielo terra ha permesso di ricostruire il tetto con strutture leggere in legno lamellare imbiancato con cementite e ha permesso di usare blocchi di Poroton alveolari per le murature portanti. Completa la ristrutturazione una serra passiva, sempre in legno lamellare, sul terrazzo.
Progetto: Arch. Enrico Cerioni.
Direzione lavori: Arch. Enrico Cerioni.

Illustrazione 3/3
L'intervento partendo dalla demolizione totale cielo terra ha permesso di ricostruire il tetto con strutture leggere in legno lamellare imbiancato con cementite e ha permesso di usare blocchi di Poroton alveolari per le murature portanti. Completa la ristrutturazione una serra passiva, sempre in legno lamellare, sul terrazzo.
Progetto: Arch. Enrico Cerioni.
Direzione lavori: Arch. Enrico Cerioni.
